Skip to main content

Kelemente Wohnhausanlage – VERKAUFT

Neue belagsfertige oder schlüsselfertige Wohnungen gleich neben dem Schloss Esterházy

Willkommen in Fertőd!

Auf dem Neusiedlersee Weltkulturerbe-Gebiet, in der wunderschönen Gemeinde von Fertőd-Eszterháza und dem kleinen Fluss Kelemente entlang, sind 16 Neubauwohnungen vor kurzem fertig gestellt worden.

Die Immobilie weist die Fertő-Ufer Architekturmerkmale auf, die dem Architekten und Planer der Wohnhausanlage am Herzen nahe liegen.

Die Wohnungen befinden sich im Grünen und haben alle einen Ausblick auf den Park. Man kann vom Balkon oder von der Terrasse aus, auch das Schloss Esterházy erblicken.

Als Wohnungsbesitzer können Sie täglich das naheliegende Stadtzentum mit dem Rathaus, den Kaffeehäusern, den Bäckereien und den Geschäften genießen. Gleichzeitig können Sie sich gut erholen, dank der ruhigen Lage.

Bei der Anordnung der Wohnungen haben wir darauf geachtet, dass die Anzahl der sonnigen Stunden in den Wohnungen möglichst groß bleibt, damit die Räumlichkeiten hell und warm sind und dadurch auch der Energiebedarf positiv beeinflusst wird.

Das Projekt

Geplant und gebaut wurden diese Wohneinheiten auch für Familien die staatliche Förderung in Anspruch nehmen wollen.

Die Wohnungen werden optional sowohl belagsfertig, als auch schlüsselfertig verkauft.

Während den Bauarbeiten haben wir darauf großen Wert gelegt, dass die Umwelt möglichst wenig belastet wird und es wurde für eine zusätzliche Begrünung gesorgt.

Ein wesentlicher Bestandteil der Planung war, dass alle Wohnungen zumindest über eine Terrasse, eine Dachterrasse oder einen Balkon verfügen. Zusätzlich gehört zu jeder Wohnung ein Parkplatz und ein Abstellraum.

Hier finden Sie uns

Lageplan

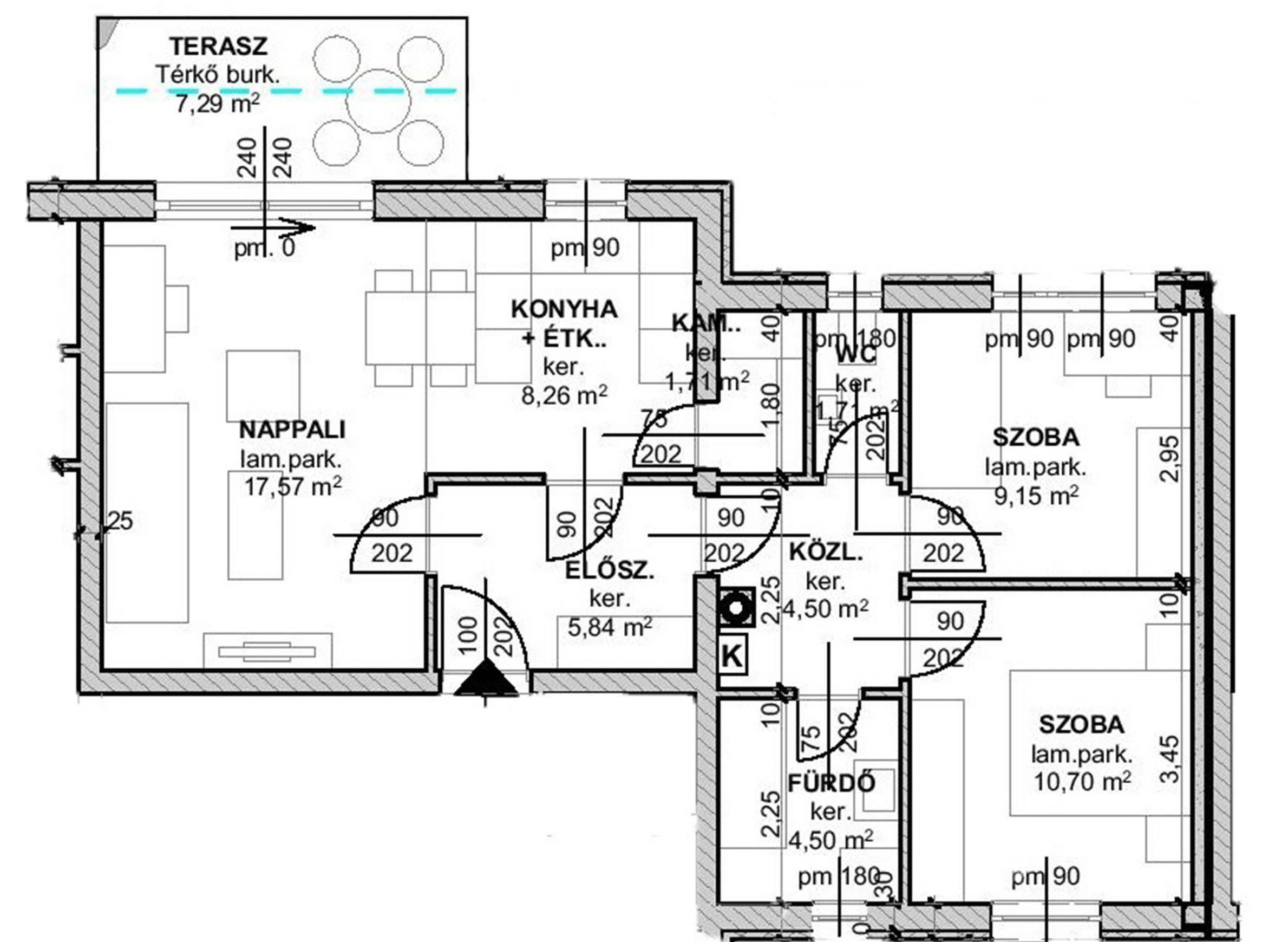
Kelemente Lakas 1

Top 1

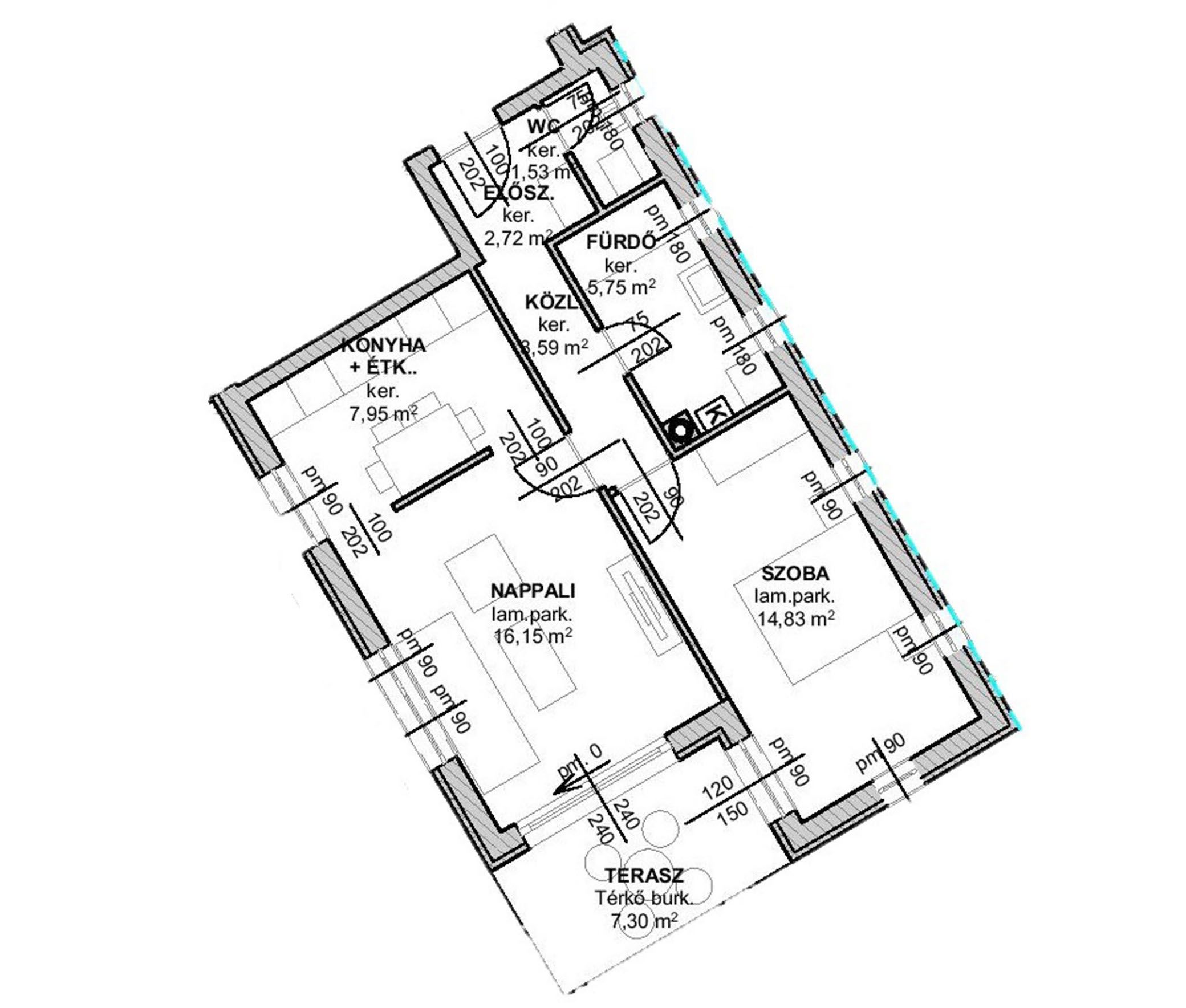
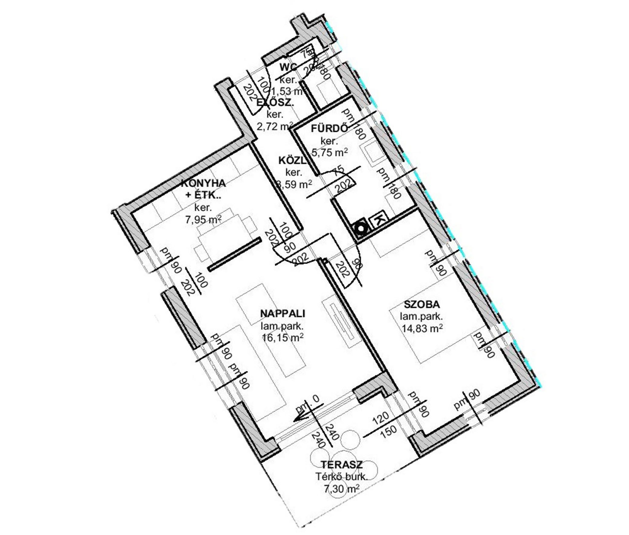
Fläche: 52,25m2

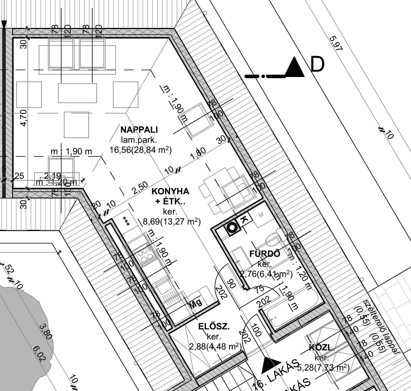
Kelemente Lakas 2

Top 2

Fläche: 67,75 m2

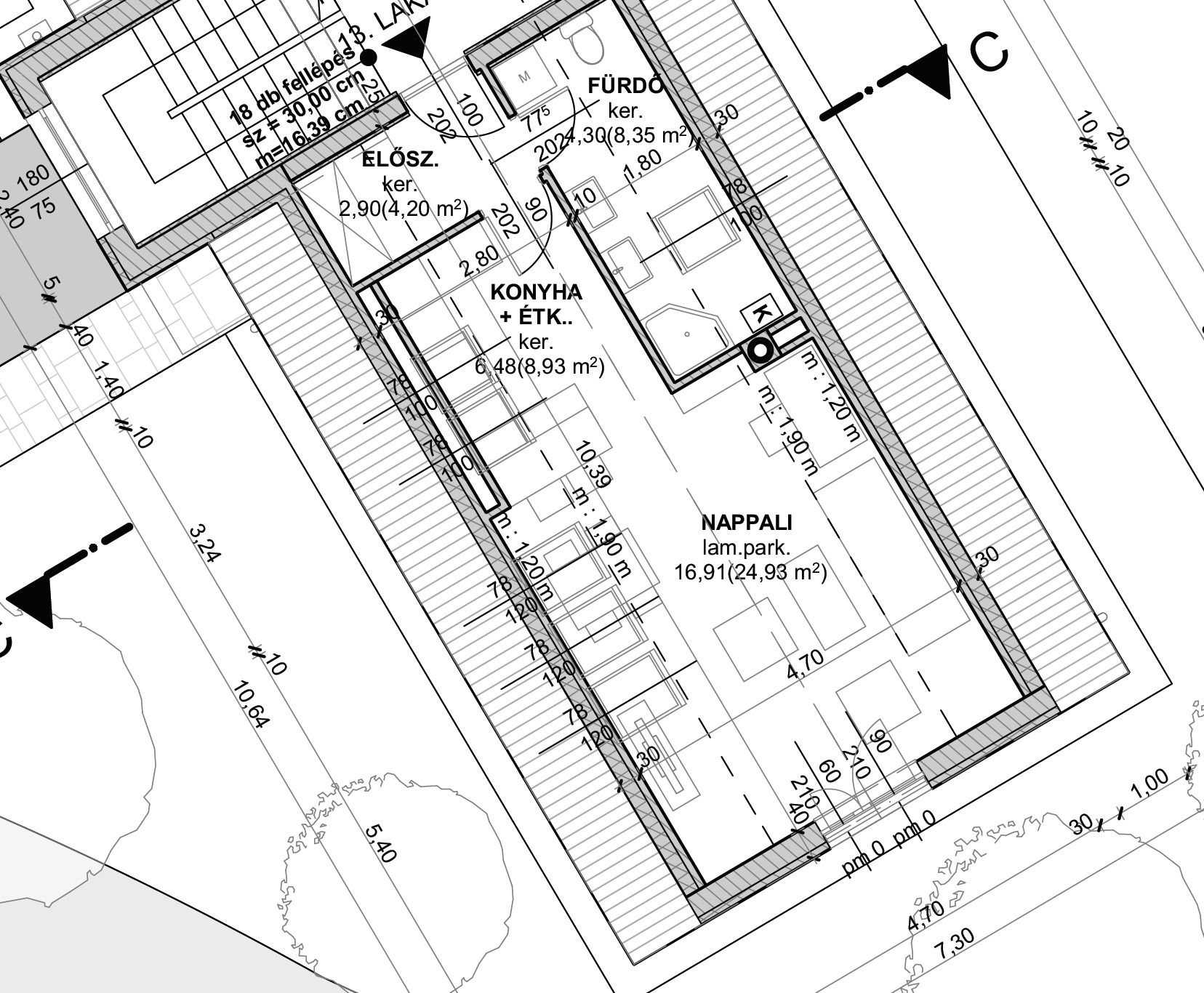
Kelemente Lakas 3

Top 3

Fläche: 63,95 m2

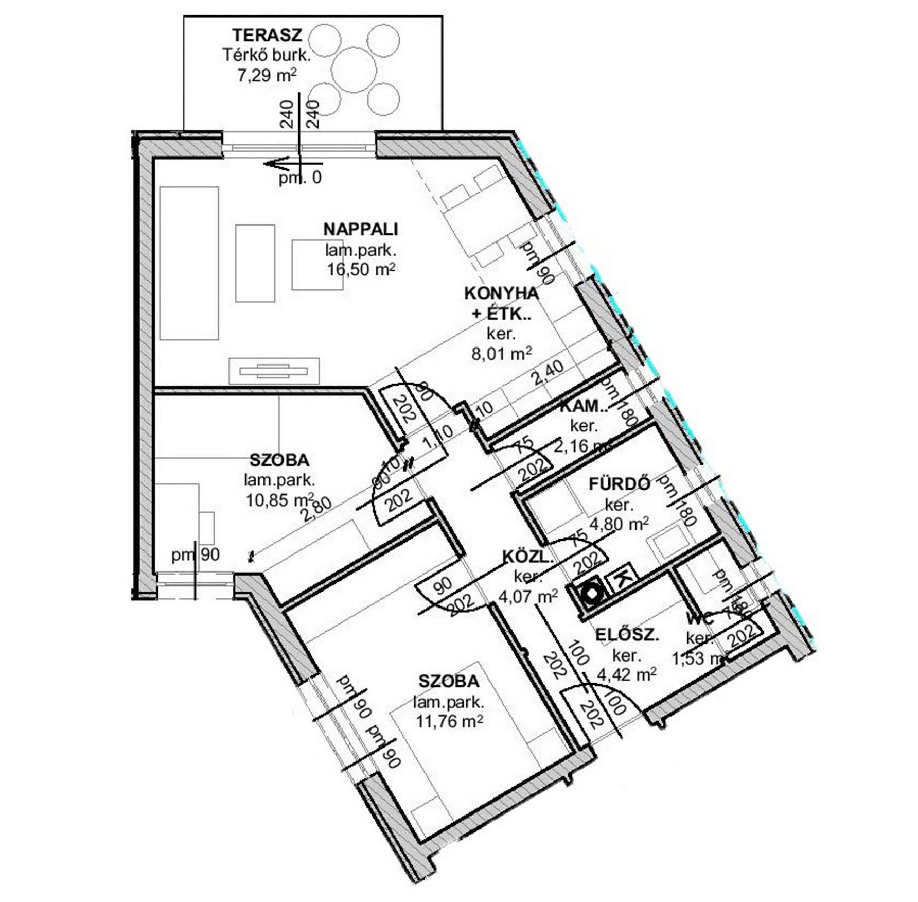
Kelemente Lakas 4

Top 4

Fläche: 54,11 m2

Kelemente Lakas 4

Top 5

Fläche: 64,59 m2

Kelemente Lakas 6

Top 6

Fläche: 54,11 m2

Erdgeschoss

TOP m2 Belagsfertig* Schlüsselfertig* Status
152.25verkauft
267.75verkauft
363.95verkauft
454.11verkauft
564.59verkauft
654.11verkauft

1. Obergeschoss

TOP m2 Belagsfertig* Schlüsselfertig* Status
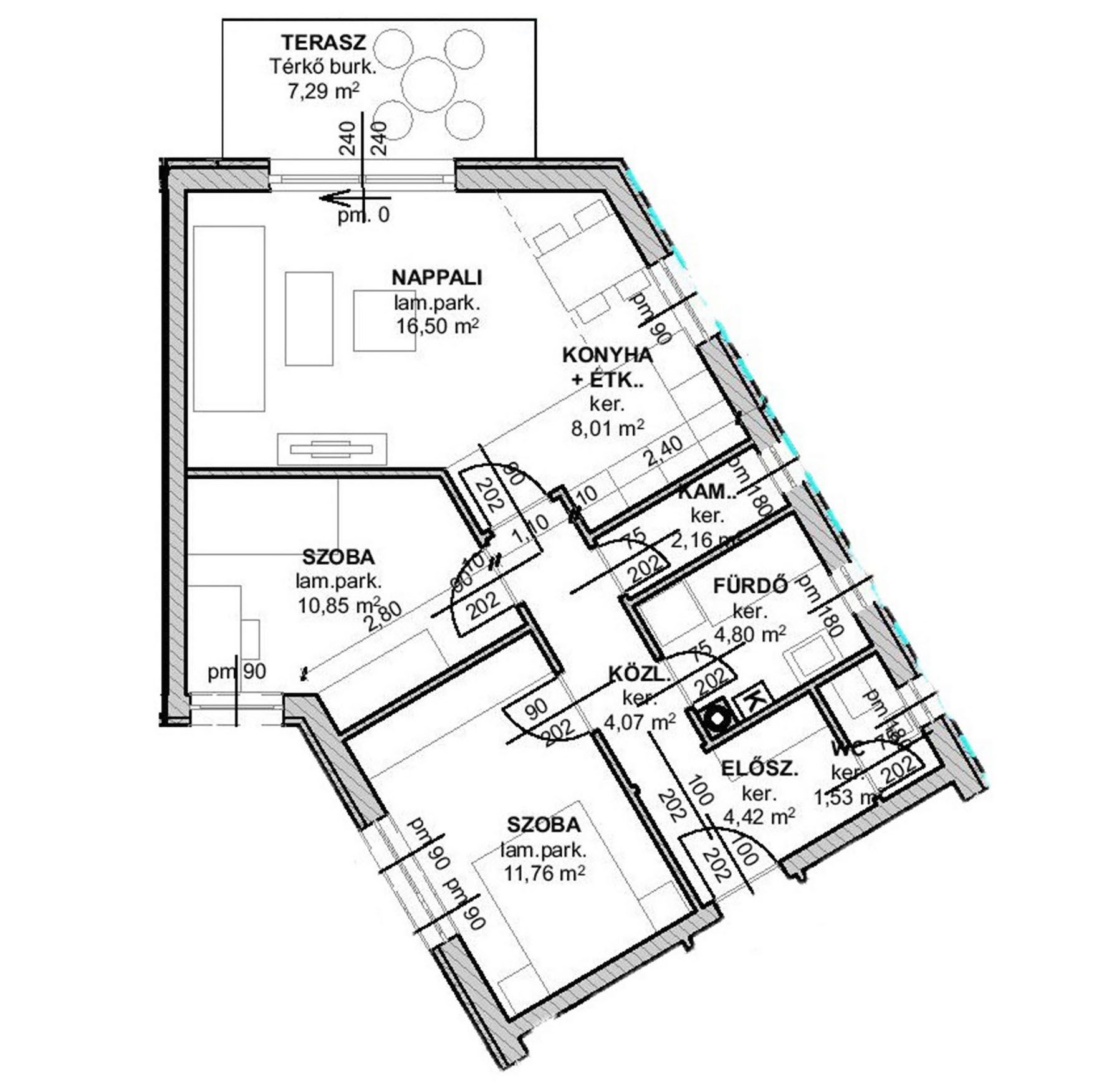
758.25verkauft
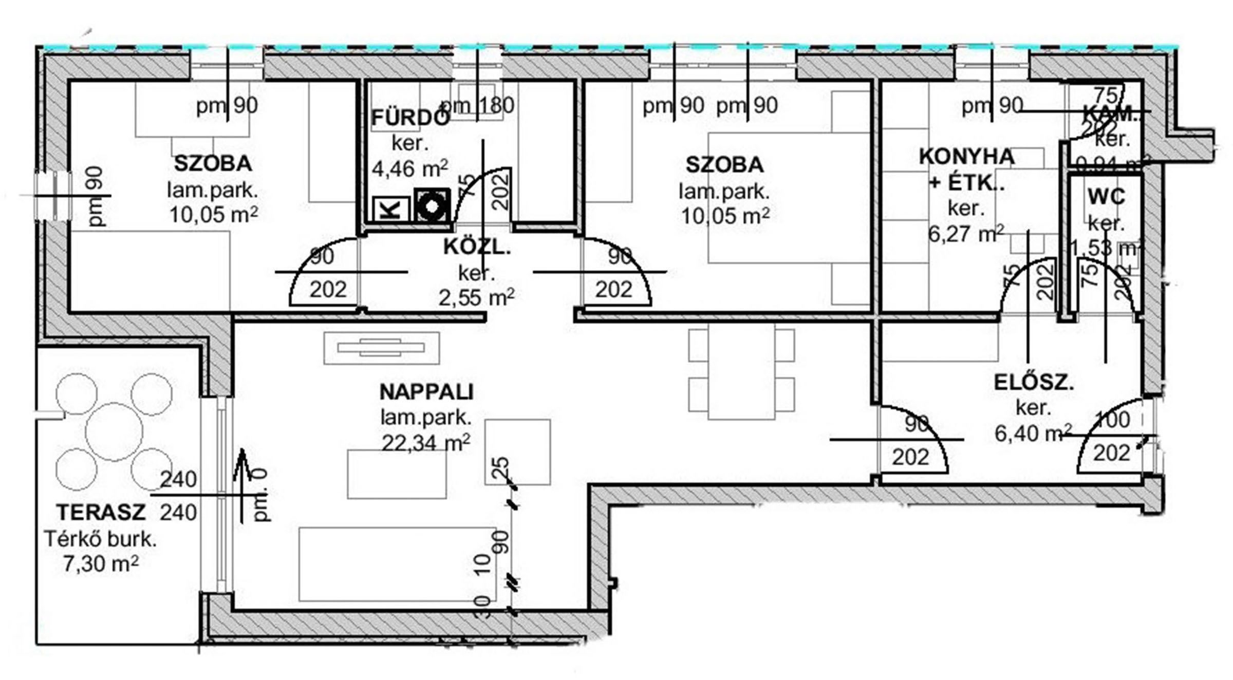
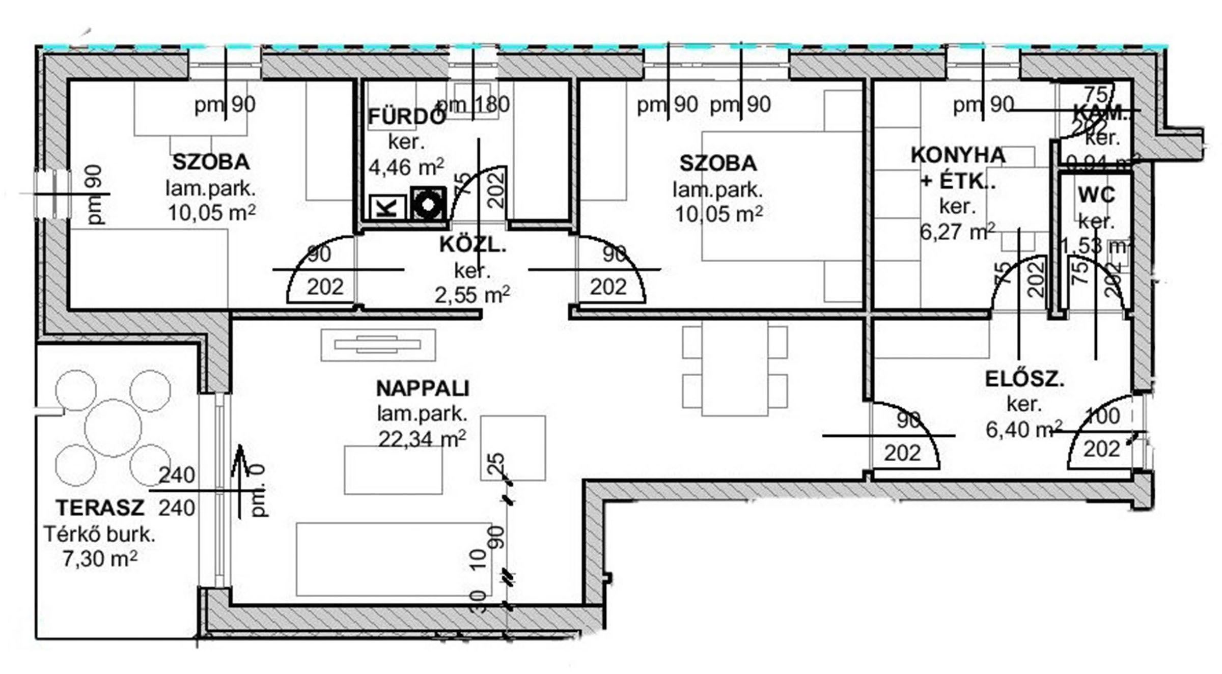
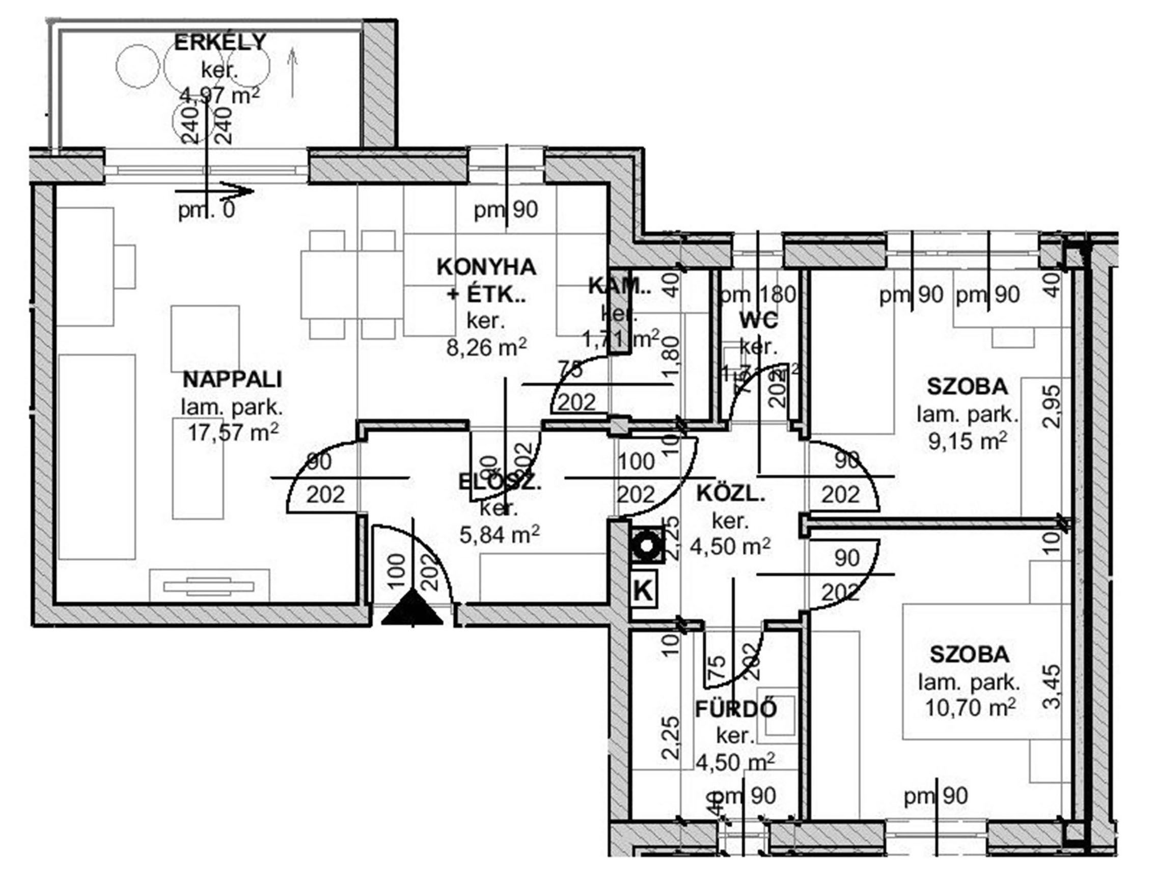
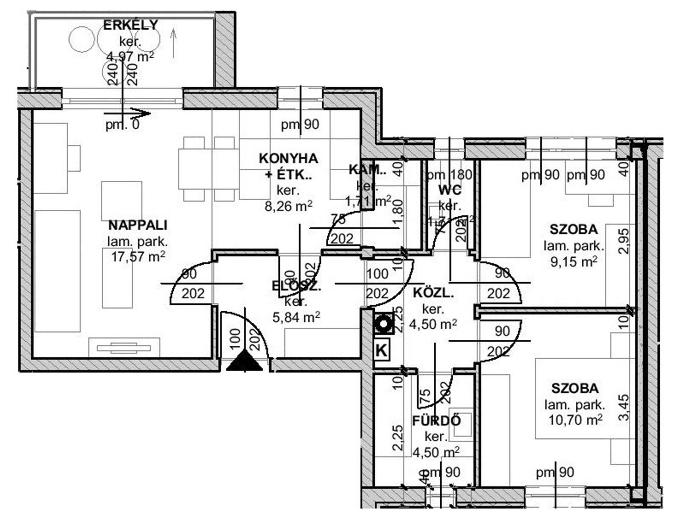
866.60-verkauft
963.95verkauft
1050.46verkauft
1167.09-verkauft
1253.96verkauft
Kelemente Lakas 7

Top 7

Fläche: 58,25 m2

Kelemente Lakas 8

Top 8

Fläche: 66,60 m2

Kelemente Lakas 9

Top 9

Fläche: 63,95 m2

Kelemente Lakas 1

Top 10

Fläche: 50,46 m2

Kelemente Lakas 11

Top 11

Fläche: 67,09 m2

Kelemente Lakas 12

Top 12

Fläche: 53,96 m2

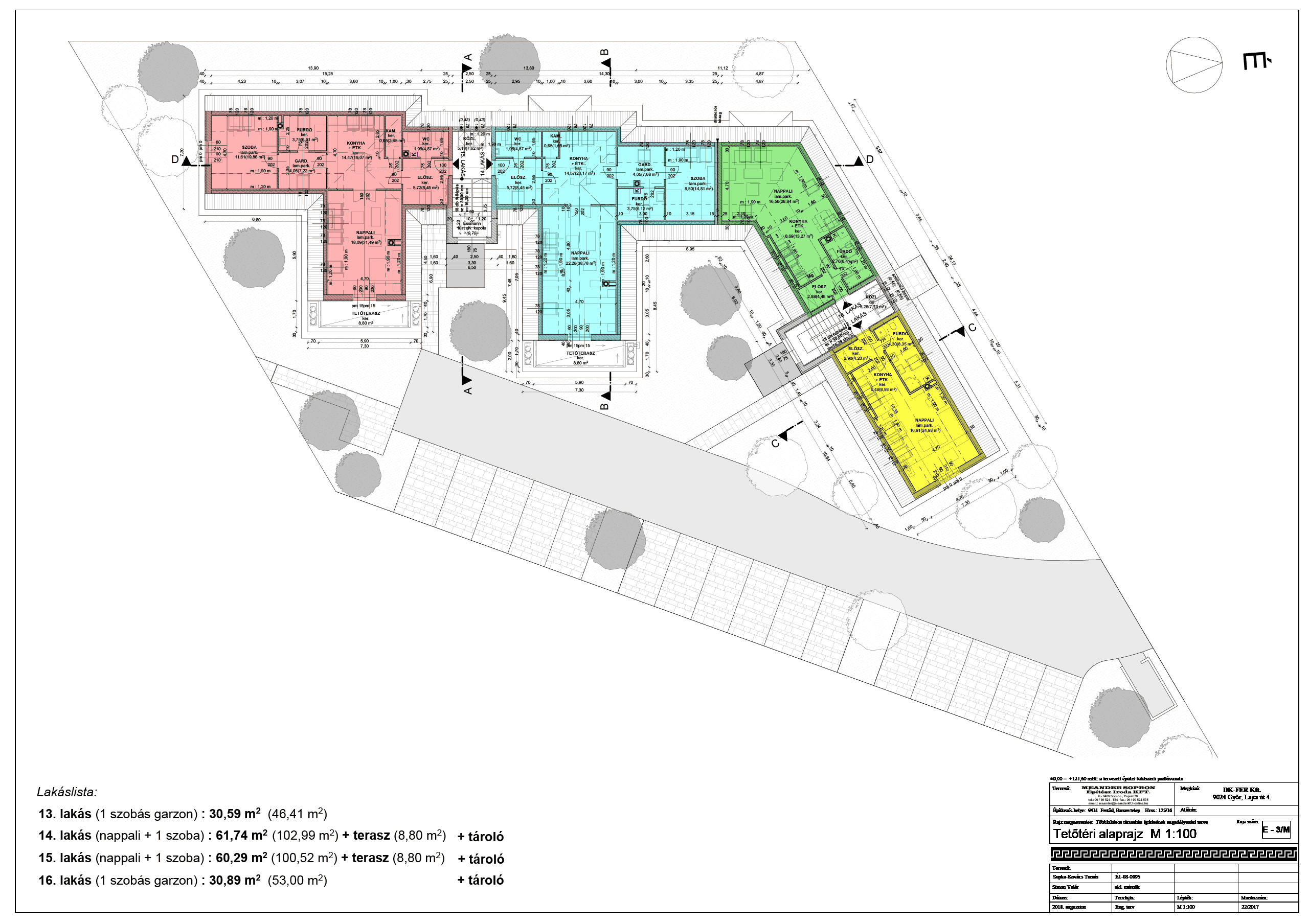
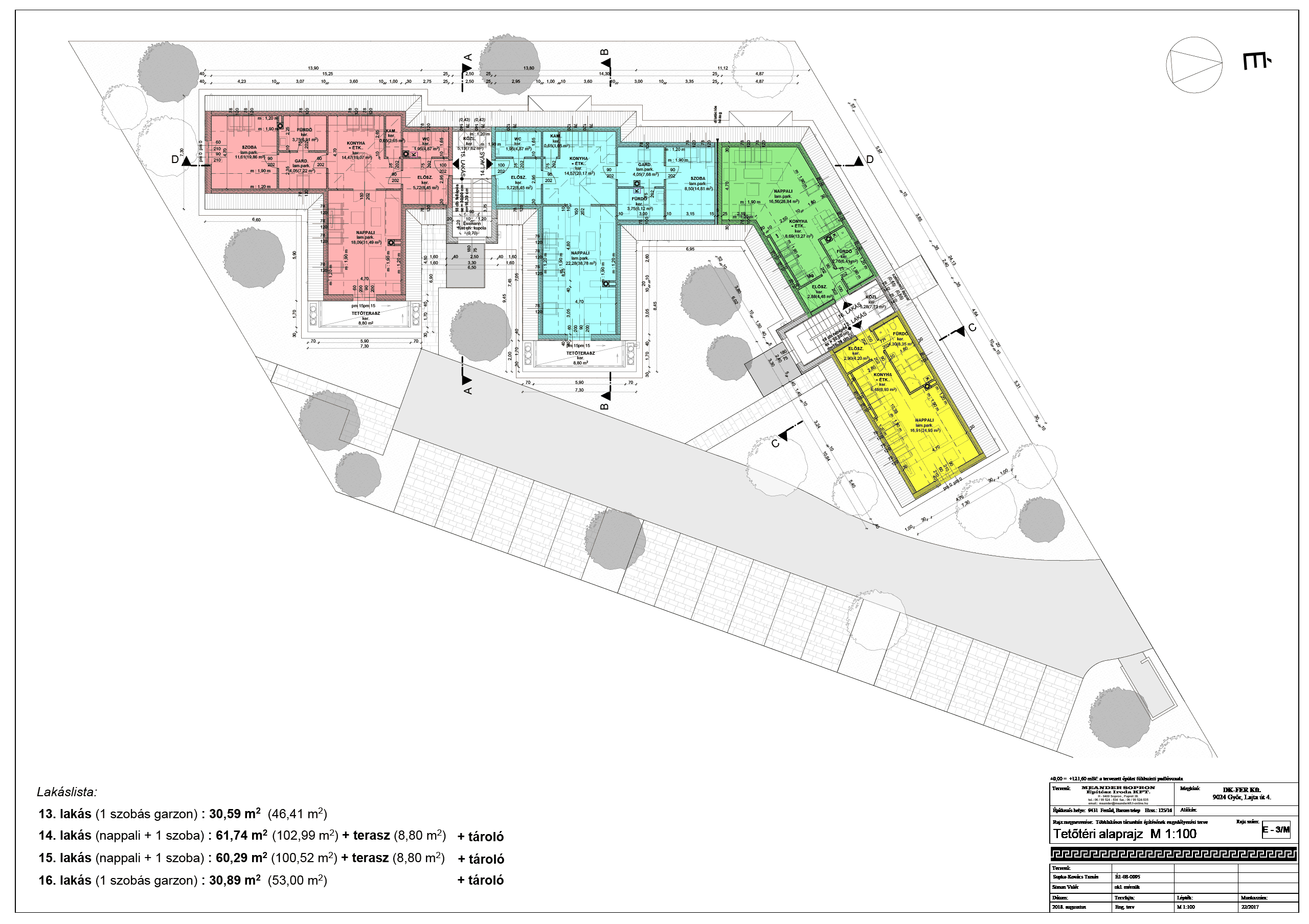
Kelemente Lakas 13

Top 13

Fläche: 46,41 m2

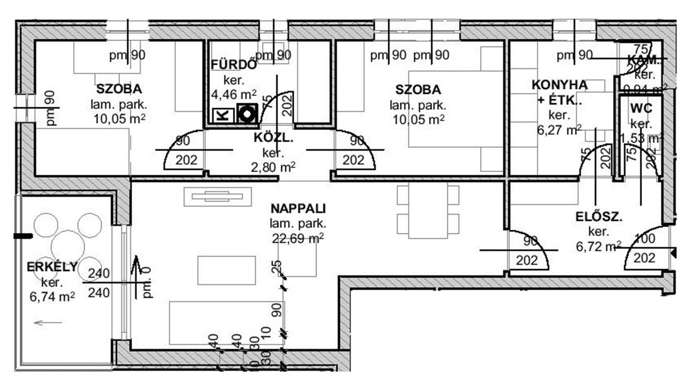
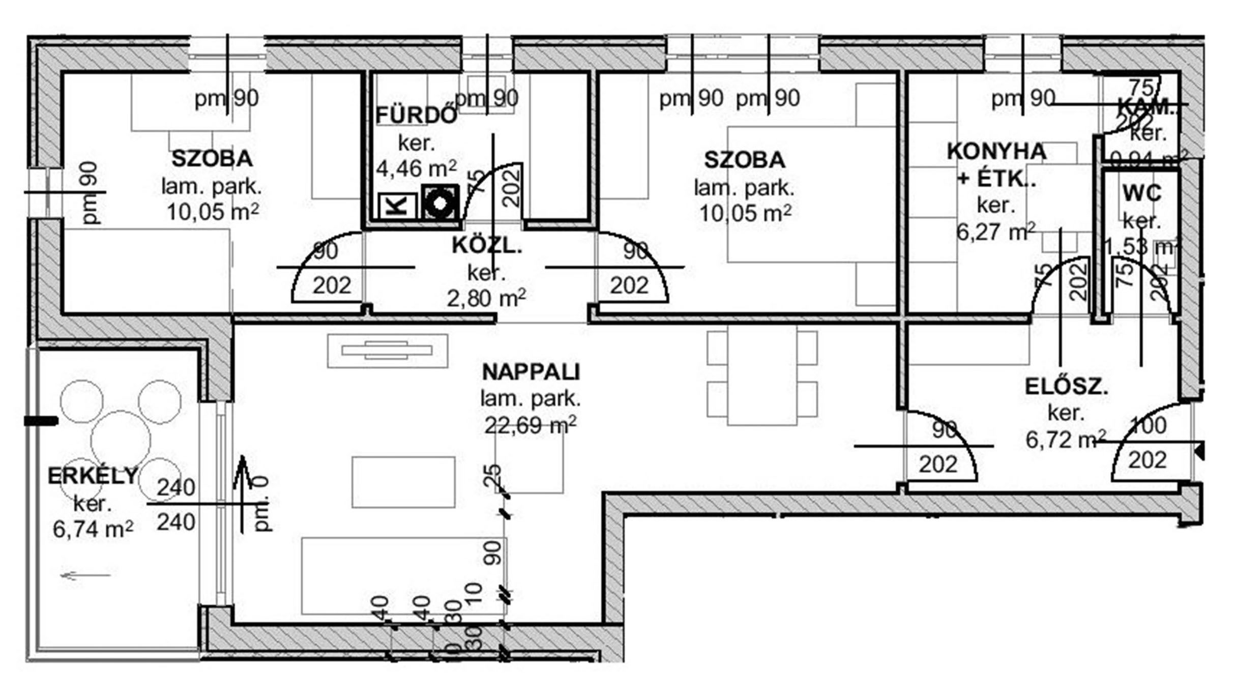
Kelemente Lakas 14

Top 14

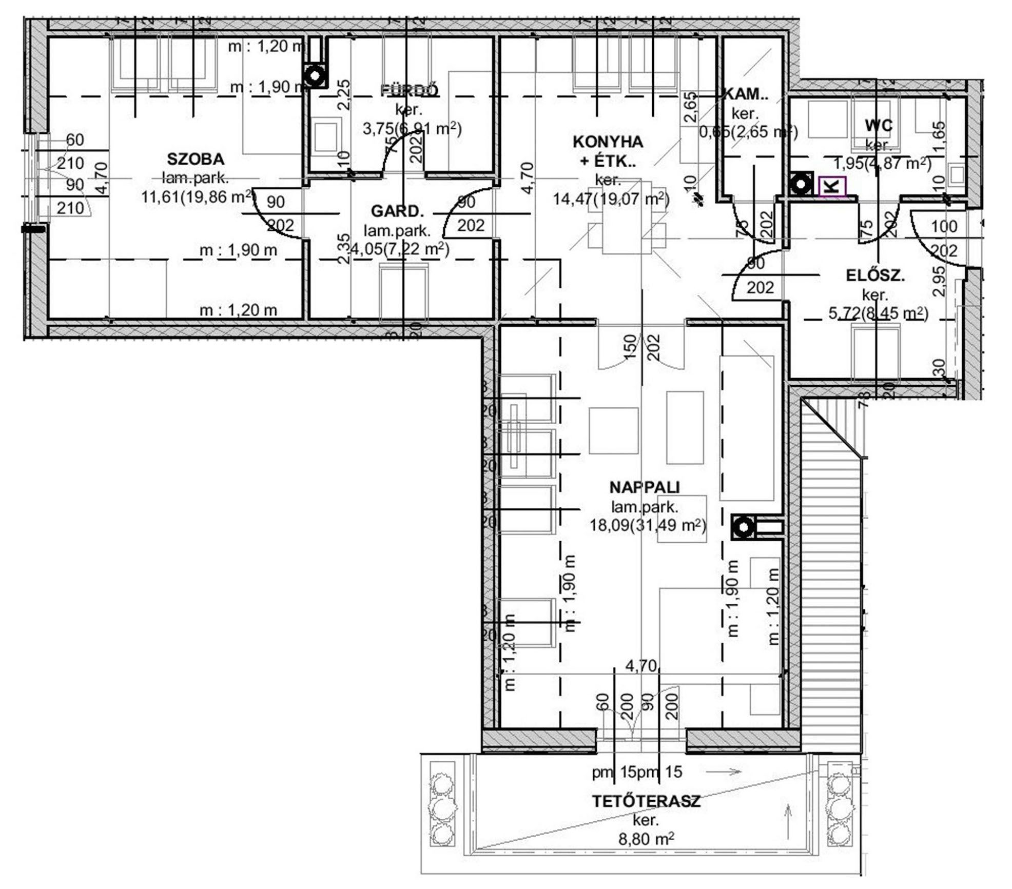
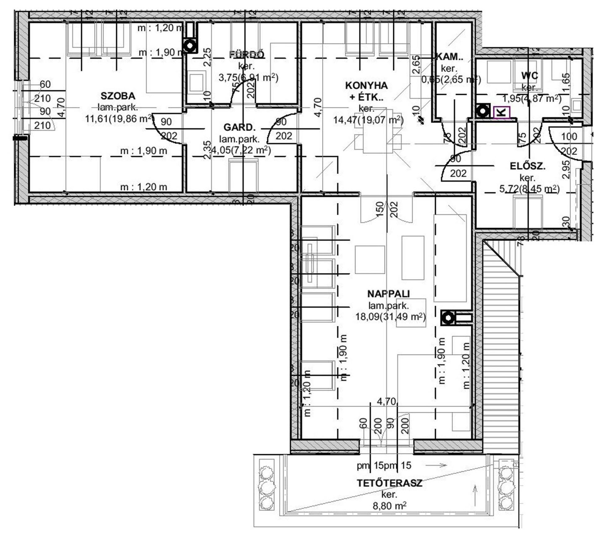
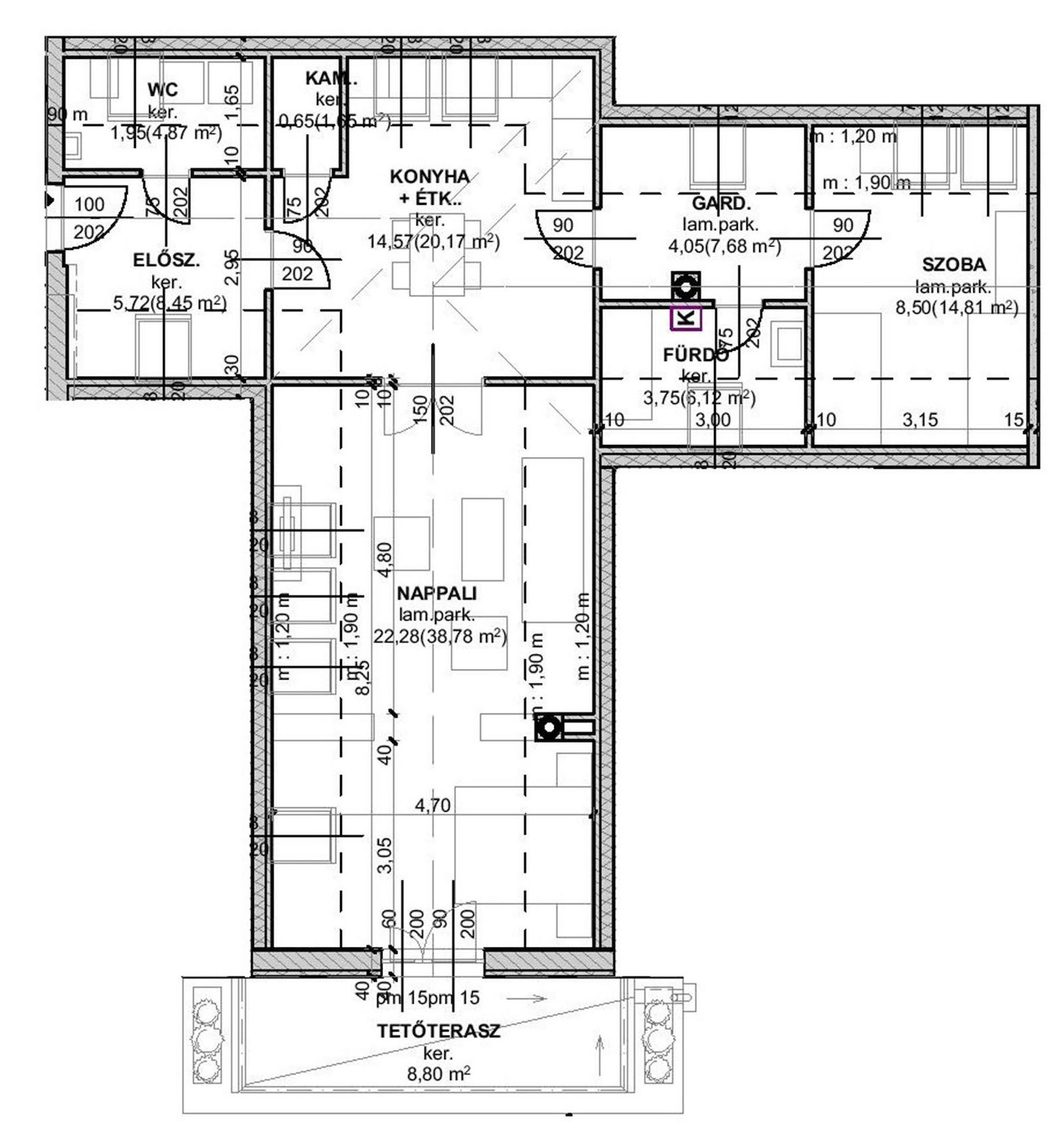
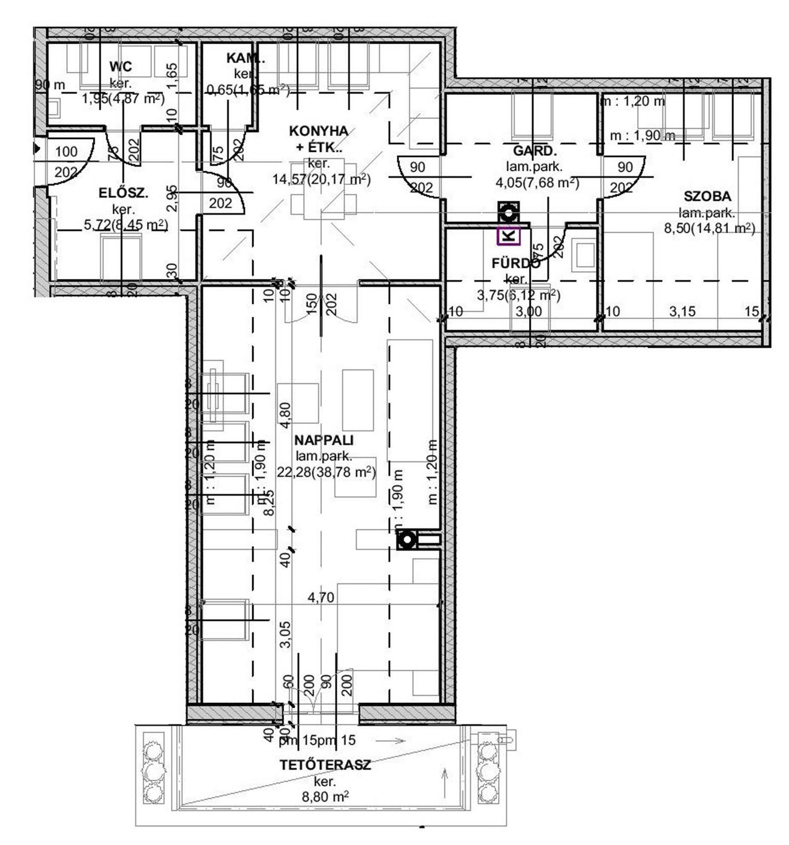
Fläche: 86,80 m2

Kelemente Lakas 15

Top 15

Kelemente lakás

Fläche: 84,80 m2

Kelemente Lakas 16

Top 16

Fläche: 41,16 m2

Dachgeschoss

TOP m2 Belagsfertig* Schlüsselfertig* Status
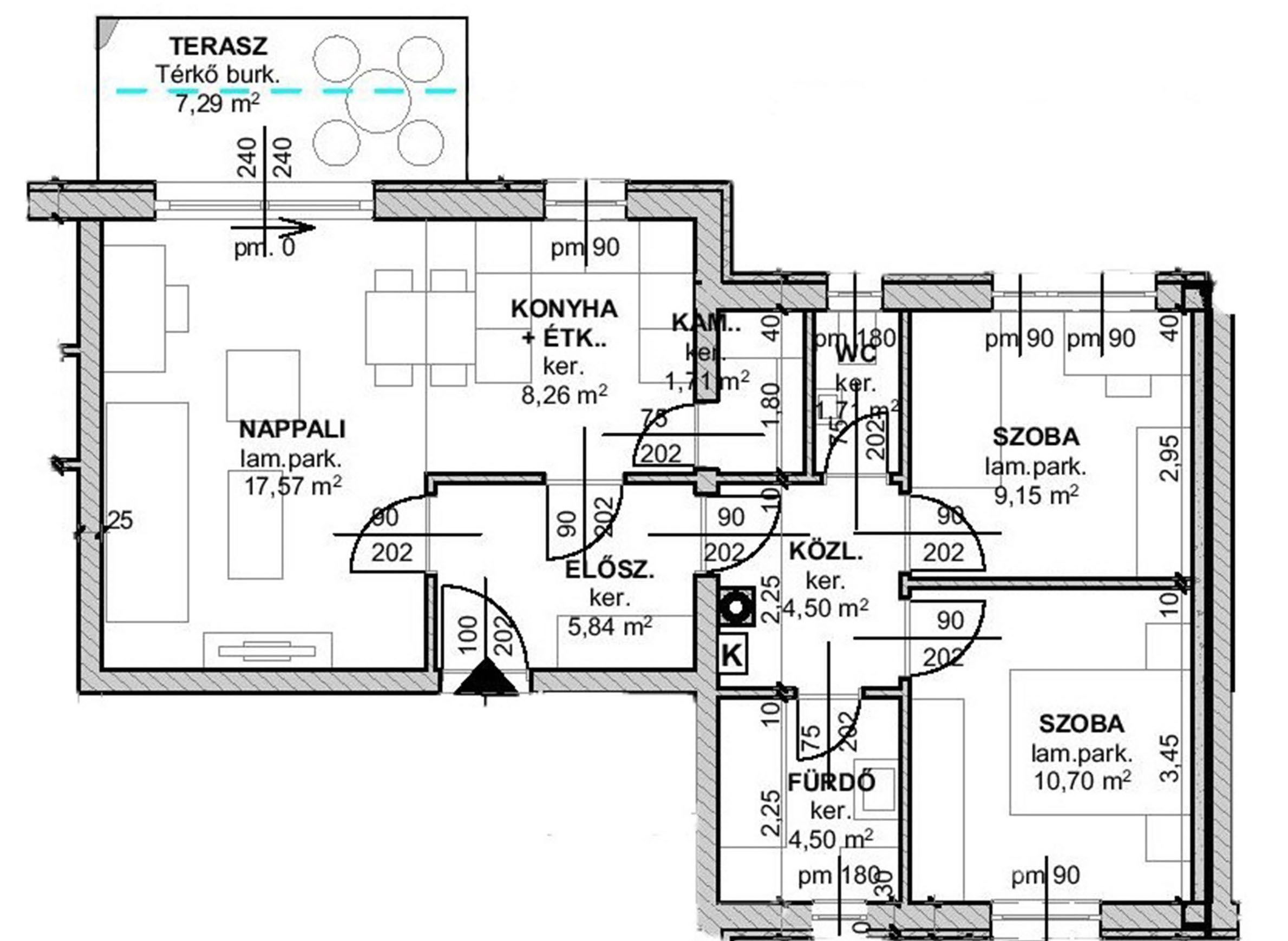
1346.41verkauft
1486.80-verkauft
1584.80verkauft
1641.16-verkauft

KONTAKTIEREN Sie uns!

Falls Sie Fragen haben, können Sie uns gerne wochentags ab 09:00 bis 14:00 telefonisch erreichen. Wir beantworten Ihnen gerne alle Fragen!